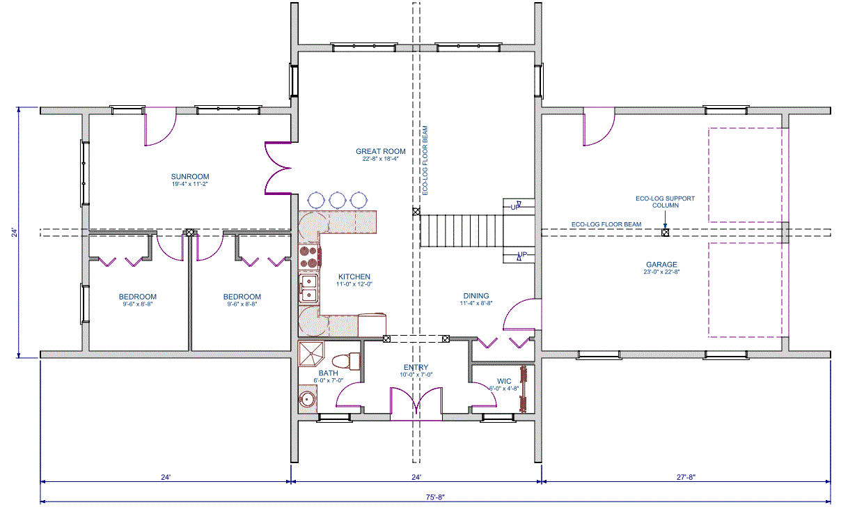
Floor Plan, 1920 sqft Footprint, 3300 sqft Living Space

This plan has a footprint of 1920 sqft, offering about 3300 sqft total living space on main and loft floor.

This building footprint consists of a 24'x36' area (living room/kitchen), connected to two 24'x24' and 24'x28' wings.

Key features of the plans below are:

  • Garage integrated on main floor
  • large open living room and kitchen area
  • living room partly open to ceiling
  • 2 bedrooms and sun room on main floor
  • 2 spacious master bedrooms each with ensuite and lots of closet space in loft
  • 4 covered balconies in loft area
  • huge open area above kitchen (media/rec room)

This plan can easily be modified to offer more bedrooms for bigger families.

Please contact us for a higher resultion version of the plans, or for free consultation on how to modify this plan to best suit your needs !

 

Floor plan main floor of 1920 sqft EcoLog home

 

 

Floor plan loft floor of 1920 sqft EcoLog home